
















Va propunem spre achizitie apartament deosebit, situat intr-un imobil recent finalizat, in zona centrala a orasului, strada Somesului - Scala Center.
Apartamentul face parte dintr-un ansamblu remarcabil, unde s-a pus accent deosebit pe calitatea finisajelor si a confortului locatarilor.
Astfel, se beneficiaza de o curte comuna foarte frumos amenajata, cu spatii verzi si zone recreative, iar la parterul imobilului exista un supermarket Mega Image, salon de cosmetica etc.
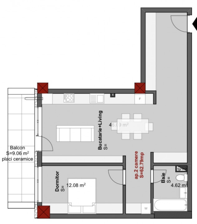
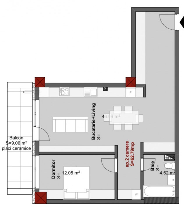
Apartamentul se ofera complet mobilat si utilat modern, totul fiind de o calitate foarte buna iar in pretul apartamentului se ofera si un loc de parcare situat in garajul subteran al imobilului. Se desfasoara pe o suprafata utila foarte generoasa de 63 mp, fiind compartimentat in livingroom open space cu bucataria, 1 dormitor, 1 baie, hol si un balcon de 9 mp, cu acces din ambele camere.
Orientarea apartamentului este vestica, astfel, apartamentul este foarte luminos si calduros, cheltuielile de intretinere fiind minime.